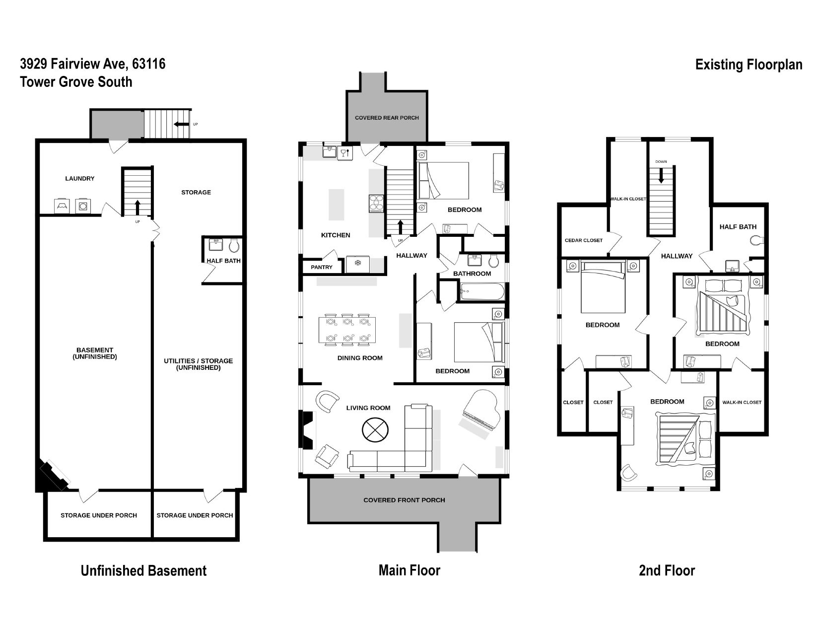
3929 Fairview Ave, Saint Louis, MO 63116

$217,500 • 4 Beds / 1 Baths • 1,953 SqFt
Offer Submission Deadline
  • Single Family House
  • 4
  • 1
  • 1925
  • 1953
  • 1953

Description

Property Overview & Highlights

Property Overview:

🛏 Beds: 4

🛁 Bath: 2

📏 Square Footage: 1,953 sqft

💰 Asking: $217,500

📸 Photos: https://photos.app.goo.gl/sHmyRfqDWbeTBPFh6

Property Highlights:

  • Occupancy - owner
  • Roof approx 5 years
  • HVAC: Gas Boiiler and radiant heat (radiators), no central air - has 5 window units
  • Hot water heater 2024
  • 2 covered porches
  • Electric, Plumbing, Sewer - Sewer original
  • Electric: 200 amp service upgrade & new panel January 2025
  • Flooring - original hardwood on most of main level, asbestos tile flooring on staircase & 2nd level floors
  • Windows - all original with storm windows and some screens
  • Kitchen & Bath: kitchen not updated
  • Garage 1 car oversized
  • Basement unfinished
  • Recent repairs/updates completed

- Gutters/downspouts replaced 2024

- Dormers: new vinyl cedar shake-look siding 2025

  • What repairs are needed?

- flooring updated on 2nd floor

- kitchen & bathroom updates

- needs central air

- paint, carpet, floors, kitchen

  • Structural/foundation issues? some plaster cracks, some concrete that was sinking in the front that he had polyjacked - bricks probably need re-layed

Similar Properties

single_propertie_
611 Norton Ave, Saint Louis, MO 63122
$ 270,000

3 Bedrooms | 1 Baths | 1,109 ft

single_propertie_
926 Chula Dr, Hazelwood, MO 63042
$ 130,000

2 Bedrooms | 2 Baths | 1,040 ft

single_propertie_
4169 Muro Ln, Bridgeton, MO 63044
$ 170,000

3 Bedrooms | 2 Baths | 1,254 ft

single_propertie_
1443 Graham St, Saint Louis, MO 63139
$ 135,000

1 Baths | 982 ft

single_propertie_
2917 Missouri Ave, Saint Louis, MO 63118
$ 265,000

5 Bedrooms | 2 Baths | 2,308 ft